wohnhäuser
wohnhaus maiwald
- bauherr: privat
- bauherr: privat
- standort: modautal / neunkirchen
- bauweise: holzständerbauweise
- umfang: umbauter raum 560 m³
- ein projekt von busch + liebig architekten
- auszeichnung: tag der architektur 2013
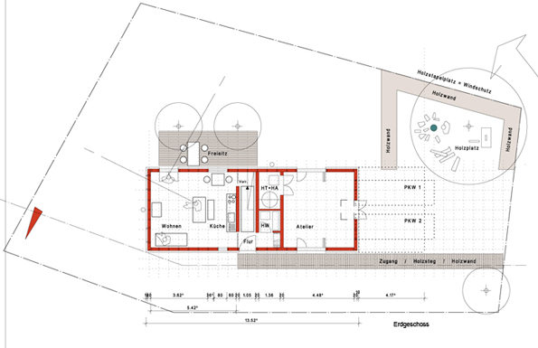
Am Ortsrand eines auf 600 m liegenden Höhendorfes im Odenwald wurde ein reduzierter, rechteckiger Baukörper entwickelt. Das Holzhaus erhebt sich als kraftvolle Kubatur aus der Topografie. Die Holzbauweise des zweigeschossigen Gebäudes mit dem geplanten Energiekonzept kann als zukunftsweisend bezeichnet werden.







