wohnhäuser
wohnhaus garruccio
- bauherr: privat
- jahr: 2004
- standort: niedernhausen
- umfang: grundfläche 84 m²
- ein projekt von busch + liebig architekten
- auszeichnung: tag der architektur 2005
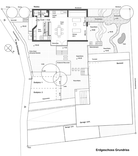
Durch die vorgefundene Gebäudelage des Bestandes (Wohnhaus der Eltern) wurde das Gebäude an der südlichen Grundstücksgrenze angeordnet. Die Grundstücksgröße ließ eine maximale Gebäudegröße von 12 m x 7 m zu. Eine Belichtung von Süden her wurde über das Dach ermöglicht. Eine kleine Bibliotheksgalerie im 1. Obergeschoss und die nach oben offene Küchenzeile im Erdgeschoss wurden mit Tageslicht versorgt. Die Nordfassade wurde mit einem Austritt in den gemeinsam genutzten Grünbereich versehen. Die Westfassade bekam eine großzügige Fensteraufteilung, welche die Blickrichtung zur Kirche und zum Schloss markiert.






