denkmalpflege, wohnhäuser
sanierung eines pfarrhauses mit remise
- bauherr: evangelische kirchengemeinde niedernhausen
- jahr: 2005
- standort: niedernhausen
- ein projekt von busch + liebig architekten
- auszeichnung: tag der architektur 2005
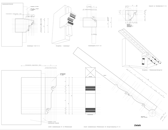
Das vorgefundene Dach des Pfarrhauses sowie die Fassade und der Außenbereich des Kellers waren sanierungsbedürftig. Die Remise war bis auf die Außenmauern zerstört. Die Natursteinmauer wurde teilweise neu aufgemauert und grundlegend saniert. Der Eisenzaun wurde nach originalgetreuen Vorlagen wieder neu angefertigt. Angefangen von dem Rückbau der Treppe an der Westfassade des Pfarrhauses und dem Nachbau der Sandsteinwände der Fenster bis hin zur Gesamtsanierung der Remise sowie der Dach- und Hofflächen, wurde die historische Gesamtanlage der Kirchengemeinde entsprechend einem „Denkmal“ saniert.







