wohnhäuser
neubau pfarrhaus seulberg
- bauherr: kirchengemeinde seulberg
- jahr: 2013
- standort: 61381 seulberg
- bauweise: massiv
- umfang: 1050 m³
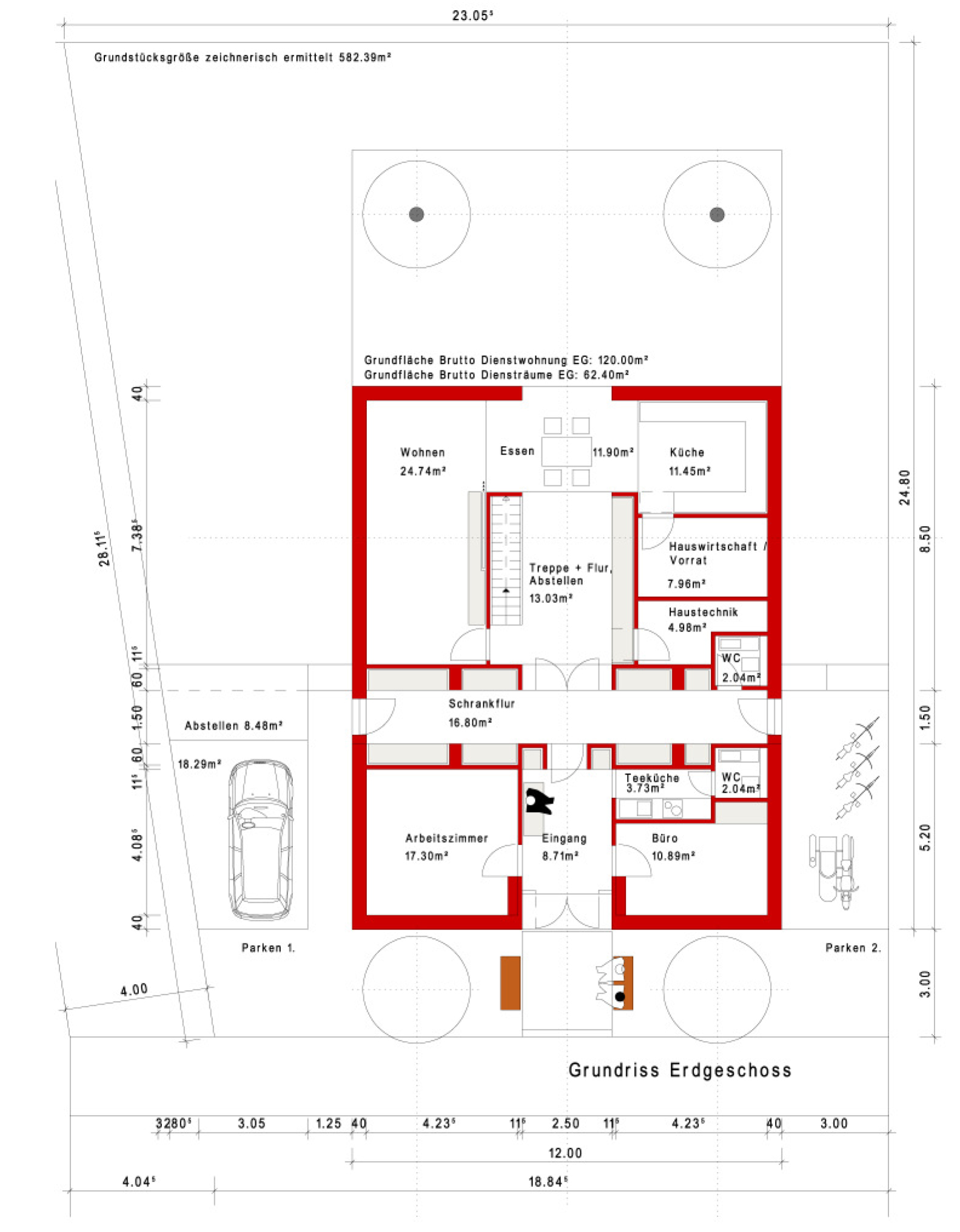
Das sanierungsbedürftige Pfarrhaus wurde abgerissen. Auf dem großen Grundstück wurden zwei Parzellen ausgewiesen. Die umliegende Bebauung ist ein reines Wohngebiet. Der Baukörper setzt sich aus einer traditionellen Wohnhausform (Satteldachgebäude) für den Wohnbereich und einem vorgelagerten Flachdachbereich für das Pfarramt zusammen. Stadtbaulich wurde das Pfarrhaus direkt an die Sudetenstraße angeordnet und öffnet sich entsprechend seiner Funktion zur Straße hin.







